De Wilgenlaar

Verkoopprijs:  €714.000,- v.o.n.

De Wilgenlaar is een karaktervolle twee-onder-een-kap schuurwoning. In dit project gelegen op kavel 11, een riante kavel van 738m². Aan de voorzijde grenst de woning aan de fruitboomgaard, wat bijdraagt aan het authentieke gevoel van ruimte en verbondenheid met het buitenleven. Aan de achterzijde vind je een ruime tuin op het zuiden, perfect om de hele dag door te genieten van de zon en lange, warme avonden.

Het ontwerp van de woning is geïnspireerd op traditionele boerderijschuren, met duurzame, natuurlijke materialen en een robuuste schuurstijl. De minimalistische afwerking geeft de woning een moderne, frisse uitstraling, terwijl de landelijke charme behouden blijft.

Comfortabel leven
Binnen biedt deze woning een lichte woonkamer en open keuken, waar ruimte en functionaliteit samenkomen. Extra voorzieningen zoals een bijkeuken, berging en twee parkeerplaatsen maken het wonen volledig compleet. Via de openslaande deuren vloeien binnen en buiten moeiteloos in elkaar over, terwijl het weidse uitzicht de ruimte een extra gevoel van vrijheid geeft. Op de verdieping bevinden zich meerdere slaapkamers en een royale badkamer. Bij de woning hoort een berging in een gedeelde kapschuur met carport.


Duurzaam en toekomstbestendig
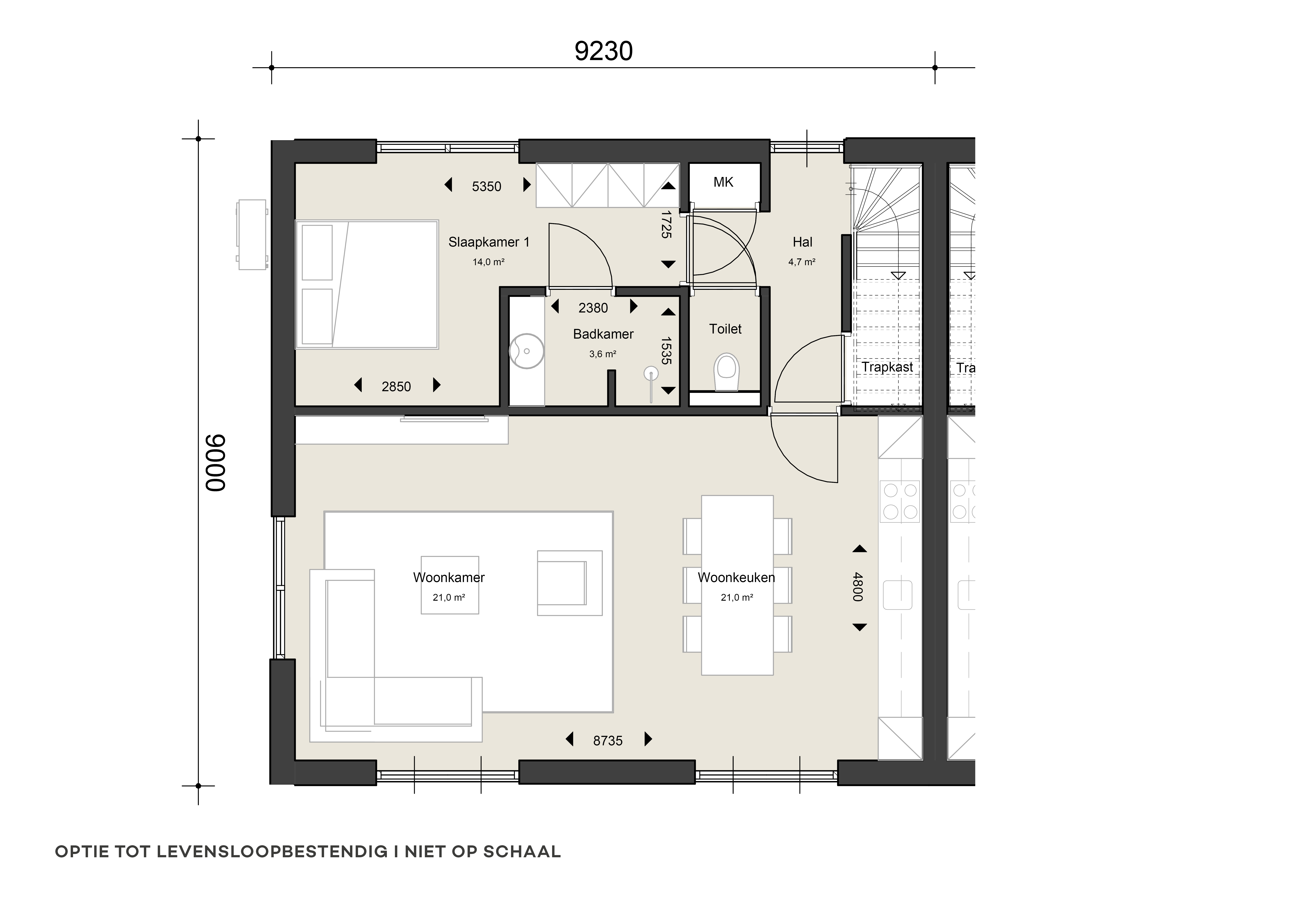
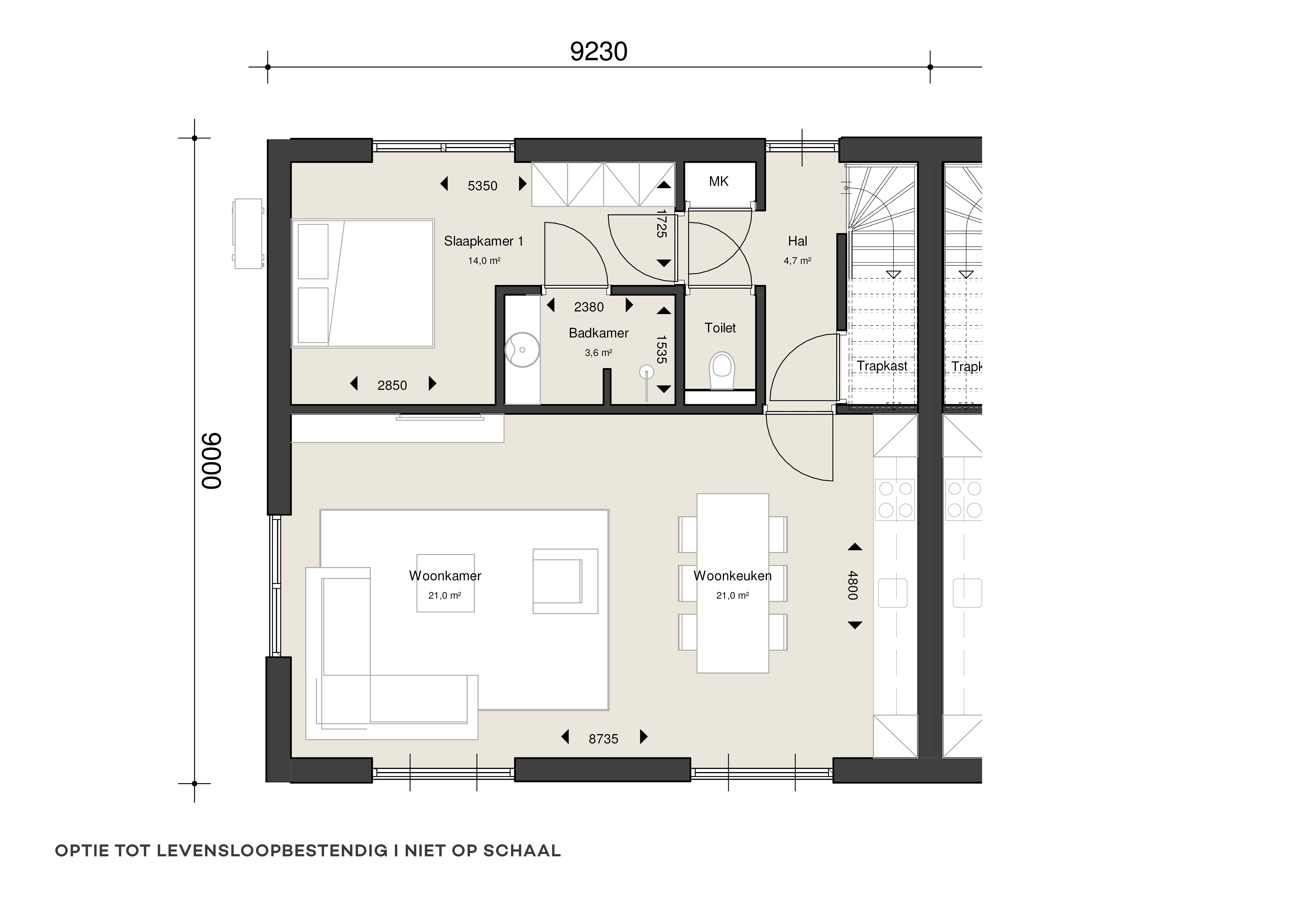
Dankzij hoogwaardige isolatie, een warmtepomp en zonnepanelen woon je energiezuinig, prettig en duurzaam. Wie gelijkvloers wil wonen, kan kiezen voor een levensloopbestendig woonprogramma met slaapkamer en badkamer op de begane grond. Zo past deze woning altijd moeiteloos bij jouw behoefte, nu én in de toekomst.

Situatie

De twee-onder-één-kapwoning De Wilgenlaar ligt op erf 2, op kavel 11. Omringd door groen biedt de woning rust, privacy en een gevoel van ruimte. Bij het perceel horen twee parkeerplaatsen. 

Het ontwerp

Het ontwerp van De Wilgenlaar combineert een schuurwoning met een moderne, frisse afwerking. Duurzame materialen en een minimalistische detaillering geven de woning tijdloze charme. Bij de woning hoort een gedeelde kapschuur van 30m² met eigen berging en carport.

Luxe binnenleven

Laat je inspireren door deze beelden die de sfeer van de woning tot leven brengen. Warme kleuren, natuurlijke materialen en een tijdloze inrichting vormen de basis voor een interieur dat past bij de karaktervolle uitstraling van de woning.

nijbroek-nieuwbouw-wilgenlaar-plattegrond
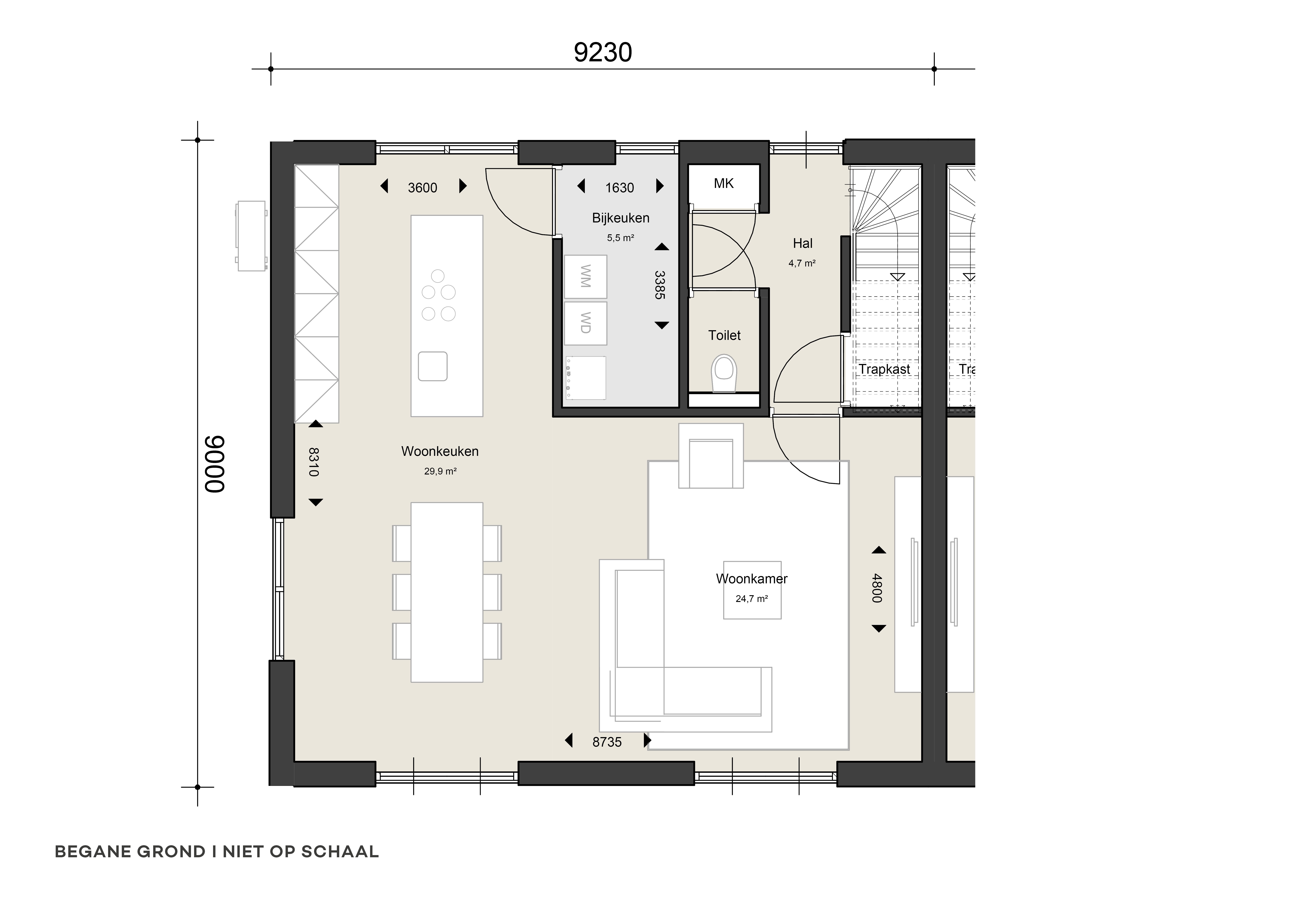
Plattegrond begane grond
nijbroek-nieuwbouw-wilgenlaar-plattegrond
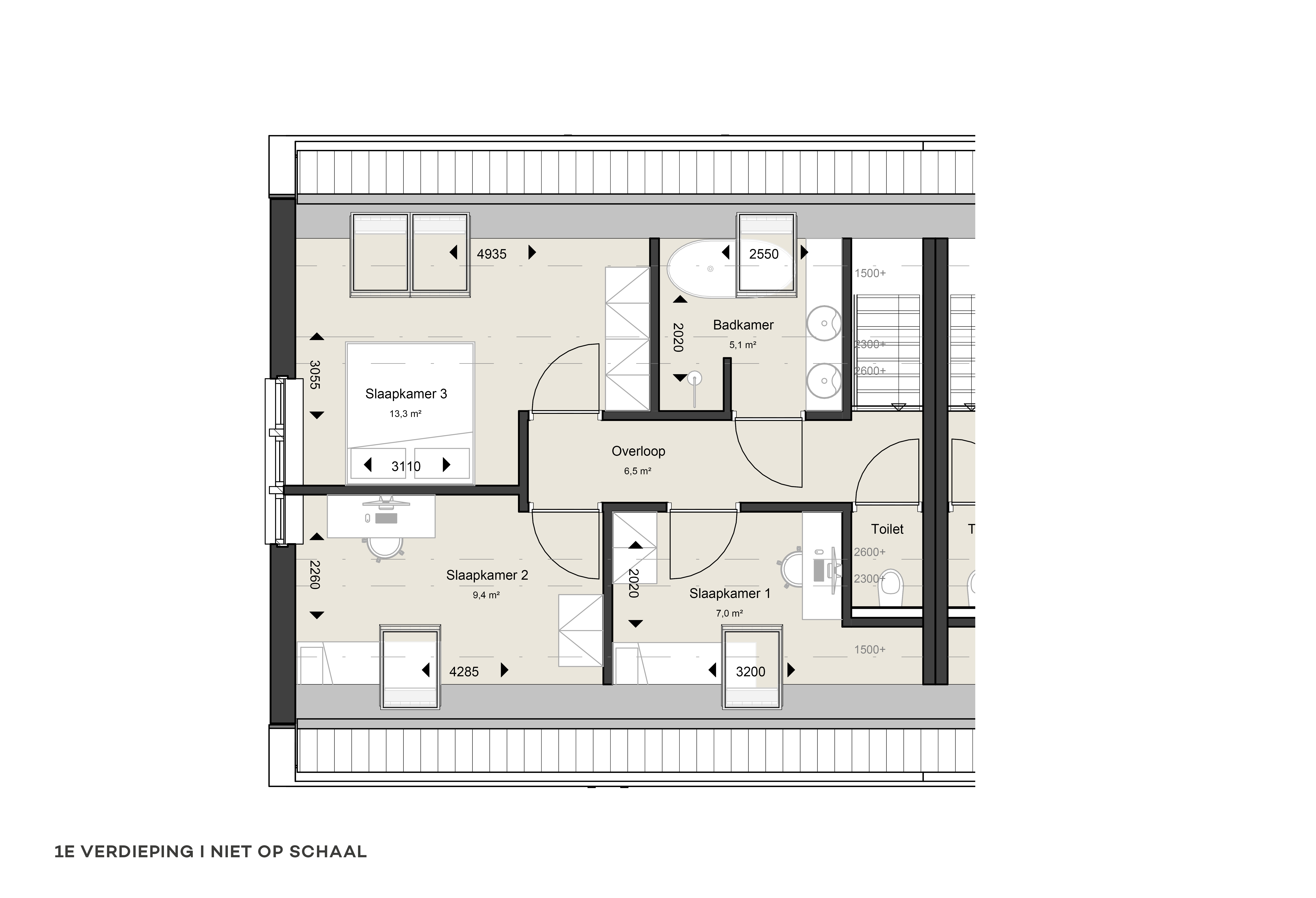
Plattegrond eerste verdieping
nijbroek-nieuwbouw-wilgenlaar-plattegrond
Mogelijkheid tot levensloopbestendige indeling
Vorige
Volgende
nijbroek-nieuwbouw-wilgenlaar-plattegrond
Plattegrond begane grond
nijbroek-nieuwbouw-wilgenlaar-plattegrond
Plattegrond eerste verdieping
nijbroek-nieuwbouw-wilgenlaar-plattegrond
Mogelijkheid tot levensloopbestendige indeling
Vorige
Volgende

Downloads I De Wilgenlaar Kavel 11