De Vlierhoeve op kavel 8

De Vlierhoeve

Verkoopprijs:  €959.000,- v.o.n.

De Vlierhoeve is een sfeervolle moderne woonboerderij met uitzicht op de boomgaard, waar rust, ruimte en verfijning samenkomen. In dit project gelegen op kavel 8, een riante kavel van 841m² en uitzicht op een boomgaard. De woning combineert landelijke charme met moderne afwerking. De rietgedekte kap met wolfseind, de houten gevelbekleding, donkere hardhouten kozijnen en gemêleerd metselwerk met stucplint  zorgen voor een warm, natuurlijk karakter.

Comfortabel leven
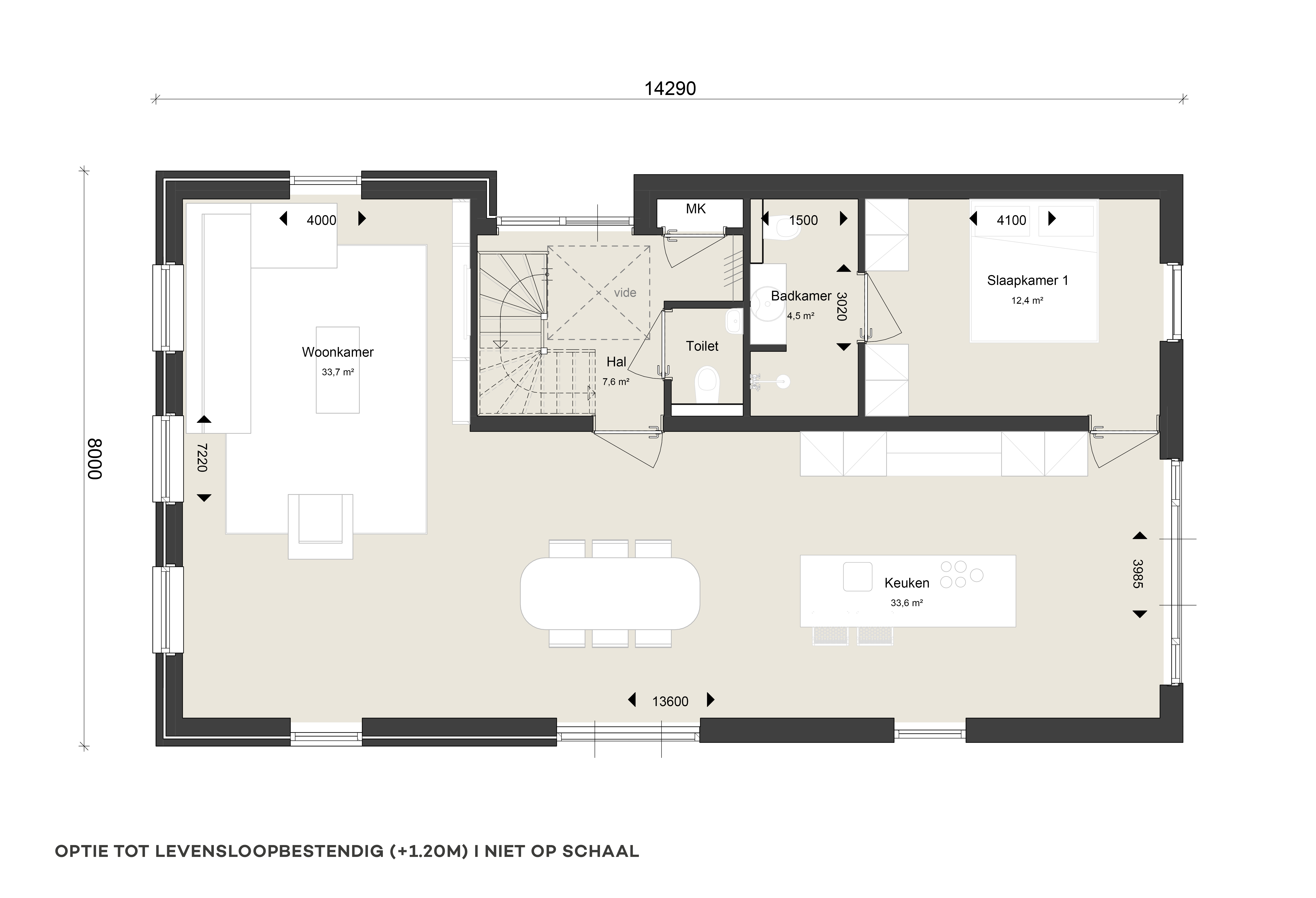
Binnen zorgen de royale leefruimtes zoals de woonkeuken en de living met openslaande deuren naar de tuin voor een ruimtelijk en comfortabel woonklimaat. De woning kent een bijkeuken en entree met toilet. Op de 1e verdieping bevinden zich meerdere slaapkamers en een royale badkamer, ingericht met oog voor comfort. De zolder is bereikbaar met vlizotrap en biedt ruimte voor berging. Bij de woning hoort een vrijstaande kapschuur van 54m² met berging en carport.


Duurzaam en toekomstbestendig
Dankzij hoogwaardige isolatie, een warmtepomp en zonnepanelen op de vrijstaande kapschuur woon je energiezuinig, prettig en duurzaam. Wie gelijkvloers wil wonen, kan kiezen voor een levensloopbestendig woonprogramma met slaapkamer en badkamer op de begane grond. Zo past deze woning altijd moeiteloos bij jouw behoefte, nu én in de toekomst.

Situatie

De Vlierhoeve ligt op erf 2, op kavel 8, als enige vrijstaande woning op dit erf. Omringd door groen en met uitzicht op de boomgaard biedt de woning rust, privacy en een gevoel van ruimte. Op eigen terrein is ruimte voor twee parkeerplaatsen.

Het ontwerp

De woning is ontworpen met oog voor detail. De gevels zijn uitgevoerd in warme, natuurlijke materialen zoals metselwerk en hout, terwijl het rieten dak de woning een landelijke, luxe uitstraling geeft. In het metselwerk zijn nestkastjes geïntegreerd, wat bijdraagt aan een natuurinclusief ontwerp. Bij de woning hoort een vrijstaande kapschuur met berging en carport van 54m².

Luxe binnenleven

Laat je inspireren door deze beelden die de sfeer van de woning tot leven brengen. Warme materialen, natuurlijke kleuren en een tijdloze inrichting vormen de basis voor een interieur dat past bij de karaktervolle uitstraling van de woning.

nijbroek-nieuwbouw-vlierhoeve-plattegrond
Plattegrond begane grond
nijbroek-nieuwbouw-vlierhoeve-plattegrond
Plattegrond eerste verdieping
nijbroek-nieuwbouw-vlierhoeve-plattegrond
Plattegrond tweede verdieping
nijbroek-nieuwbouw-vlierhoeve-plattegrond
Mogelijkheid tot levensloopbestendige indeling
Vorige
Volgende
nijbroek-nieuwbouw-vlierhoeve-plattegrond
Plattegrond begane grond
nijbroek-nieuwbouw-vlierhoeve-plattegrond
Plattegrond eerste verdieping
nijbroek-nieuwbouw-vlierhoeve-plattegrond
Plattegrond tweede verdieping
nijbroek-nieuwbouw-vlierhoeve-plattegrond
Mogelijkheid tot levensloopbestendige indeling
Vorige
Volgende

Downloads I De Vlierhoeve