De beukenlaar op kavel 10

De Beukenlaar

Verkoopprijs:  €679.000,- v.o.n.

De Beukenlaar is een karaktervolle twee-onder-een-kap schuurwoning. In dit project gelegen op kavel 10, een riante kavel van 573m2 met uitzicht over de weilanden. Het ontwerp van de woning is geïnspireerd op traditionele boerderijschuren, met duurzame, natuurlijke materialen en een robuuste schuurstijl. De minimalistische afwerking geeft de woning een moderne, frisse uitstraling, terwijl de landelijke charme behouden blijft. 

Comfortabel leven
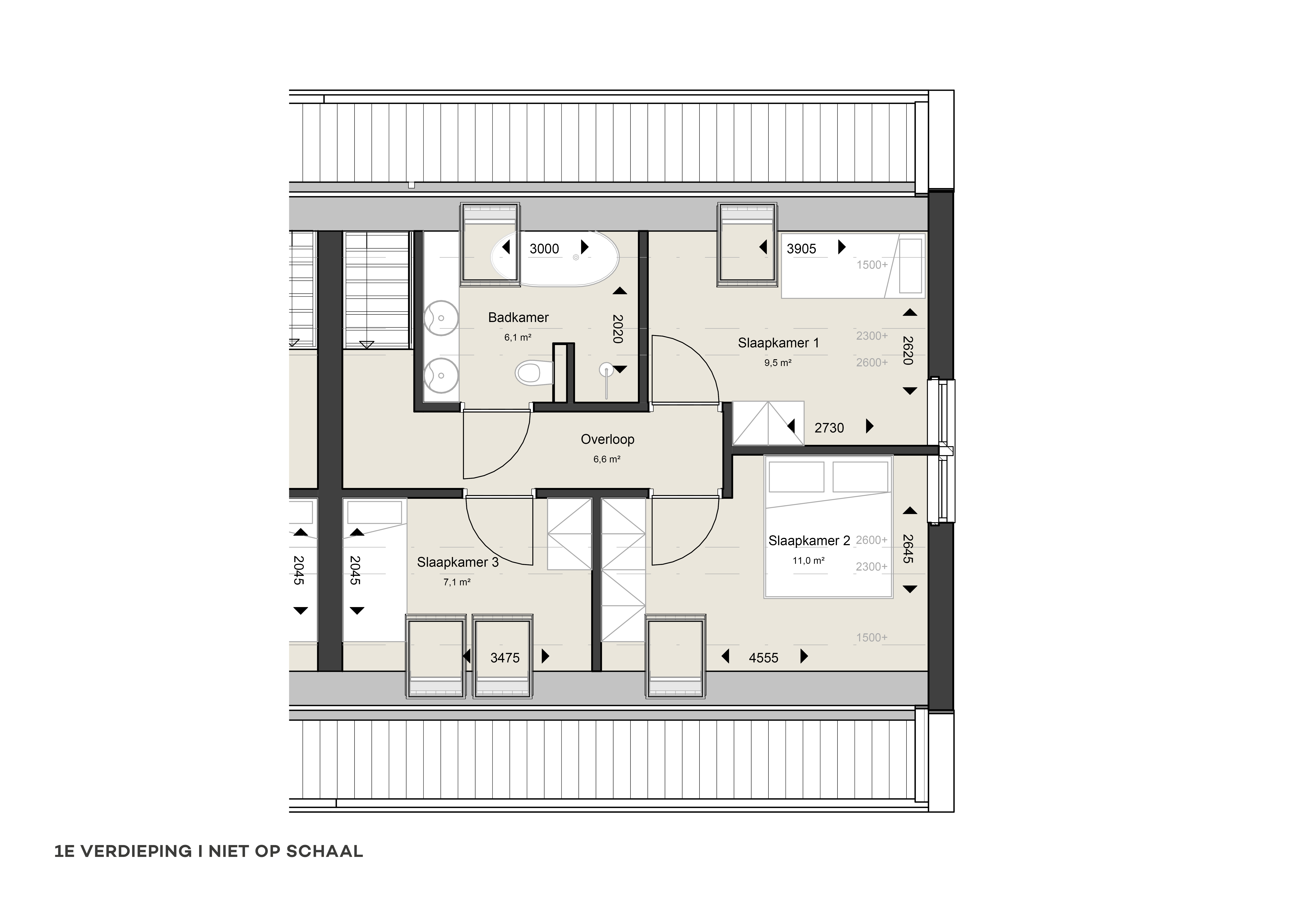
Binnen biedt deze woning een lichte woonkamer en open keuken, waar ruimte en functionaliteit samenkomen. Extra voorzieningen zoals een bijkeuken, berging en twee parkeerplaatsen maken het wonen volledig compleet. Via de openslaande deuren vloeien binnen en buiten moeiteloos in elkaar over, terwijl het weidse uitzicht de ruimte een extra gevoel van vrijheid geeft. Op de verdieping bevinden zich meerdere slaapkamers en een royale badkamer. Bij de woning hoort een berging in een gedeelde kapschuur met carport.  

Duurzaam en toekomstbestendig
Dankzij hoogwaardige isolatie, een warmtepomp en zonnepanelen woon je energiezuinig, prettig en duurzaam. Wie gelijkvloers wil wonen, kan kiezen voor een levensloopbestendig woonprogramma met slaapkamer en badkamer op de begane grond. Zo past deze woning altijd moeiteloos bij jouw behoefte, nu én in de toekomst.

Situatie

De twee-onder-één-kapwoning De Beukenlaar ligt op erf 2, op kavel 10. Omringd door groen biedt de woning rust, privacy en een gevoel van ruimte. Bij het perceel horen twee parkeerplaatsen. 

Het ontwerp

Het ontwerp van De Beukenlaar combineert een schuurwoning met een moderne, frisse afwerking. Duurzame materialen en een minimalistische detaillering geven de woning tijdloze charme. Bij de woning hoort een gedeelde kapschuur van 30m² met eigen berging en carport.

Luxe binnenleven

Laat je inspireren door deze beelden die de sfeer van de woning tot leven brengen. Warme materialen, natuurlijke kleuren en een tijdloze inrichting vormen de basis voor een interieur dat past bij de karaktervolle uitstraling van de woning.

nijbroek-nieuwbouw-beukenlaar-plattegrond
Plattegrond begane grond
nijbroek-nieuwbouw-beukenlaar-plattegrond
Plattegrond eerste verdieping
nijbroek-nieuwbouw-beukenlaar-plattegrond
Mogelijkheid tot levensloopbestendige indeling
Vorige
Volgende
nijbroek-nieuwbouw-beukenlaar-plattegrond
Plattegrond begane grond
nijbroek-nieuwbouw-beukenlaar-plattegrond
Plattegrond eerste verdieping
nijbroek-nieuwbouw-beukenlaar-plattegrond
Mogelijkheid tot levensloopbestendige indeling
Vorige
Volgende

Downloads I De Beukelaar Kavel 10