De Appelhoeve op kavel 2

De Appelhoeve

Verkoopprijs:  €989.000,- v.o.n.


Laatste kans!
Dit is jouw allerlaatste mogelijkheid om te wonen in Project Tussen de Dijken. Woning De Appelhoeve is namelijk de laatste beschikbare woning en ligt bovendien op de grootste kavel van het gehele project. Grijp deze unieke kans!

De Appelhoeve is een sfeervolle moderne woonboerderij. In dit project gelegen op kavel 2, een zeer riante kavel van 2.255m² met uitzicht op een boomgaard. De woning is ontworpen met oog voor detail. De gevels zijn uitgevoerd in warme, natuurlijke materialen zoals baksteen en hout, terwijl het rieten dak de woning een landelijke, luxere uitstraling geeft. Zo ontstaat een sfeervol en natuurlijk karakter dat perfect past in het landschap. De woning is zo gepositioneerd dat het zorgt voor optimale lichtinval, uitzicht en privacy.  

Comfortabel leven
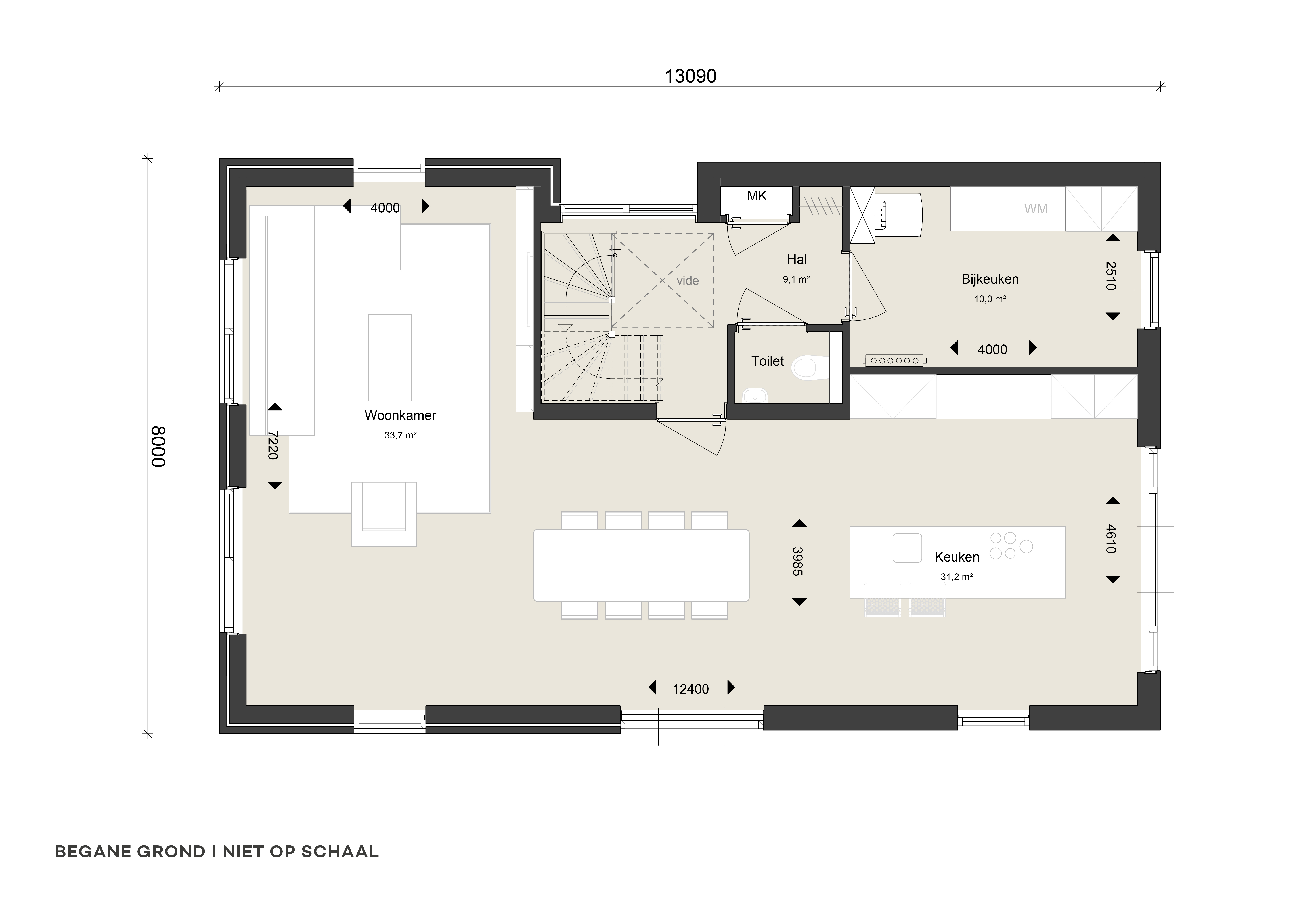
Binnen biedt de Appelhoeve royale leefruimtes met een woonkeuken en de living met openslaande deuren naar de tuin voor een ruimtelijk en comfortabel woonklimaat. De bijkeuken en entree met toilet maken de begane grond compleet. Op de eerste verdieping bevinden zich meerdere slaapkamers en een comfortabele badkamer. De zolder is bereikbaar met vlizotrap en biedt ruimte voor berging. Bij de woning hoort een vrijstaande kapschuur met berging en carport van 54m².  

Duurzaam en toekomstbestendig
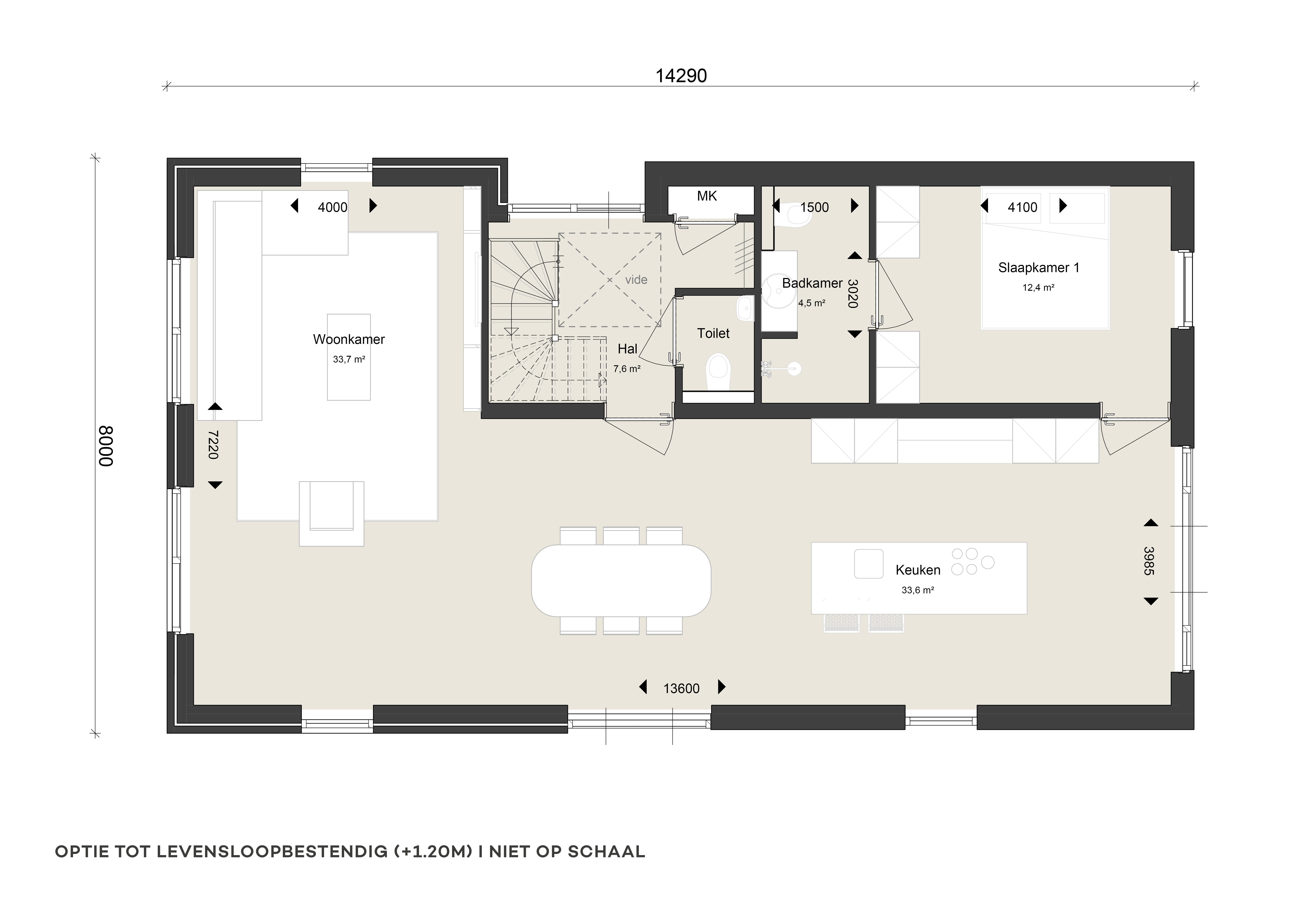
Dankzij hoogwaardige isolatie, een warmtepomp en zonnepanelen op de vrijstaande kapschuur woon je energiezuinig, prettig en duurzaam. Wie gelijkvloers wil wonen, kan kiezen voor een levensloopbestendig woonprogramma met slaapkamer en badkamer op de begane grond. Optioneel is het mogelijk een 4e slaapkamer op de verdieping te realiseren. Zo past deze woning altijd moeiteloos bij jouw behoefte, nu én in de toekomst.

Situatie

De Appelhoeve  ligt op kavel 2 van erf 1, direct bij de entree van het project, omringd door groen en met uitzicht op de boomgaard. Op eigen terrein is ruimte voor drie parkeerplaatsen.

Het ontwerp

De woning is ontworpen met oog voor detail. De gevels zijn uitgevoerd in warme, natuurlijke materialen zoals metselwerk en hout, terwijl het rieten dak de woning een landelijke, luxe uitstraling geeft. In het metselwerk zijn nestkastjes geïntegreerd, wat bijdraagt aan een natuurinclusief ontwerp. Bij de woning hoort een vrijstaande kapschuur met berging en carport van 54m².

Luxe binnenleven

Laat je inspireren door deze beelden die de sfeer van de woning tot leven brengen. Warme materialen, natuurlijke kleuren en een tijdloze inrichting vormen de basis voor een interieur dat past bij de karaktervolle uitstraling van de woning.

Plattegrond-nijbroek-nieuwbouw
Plattegrond begane grond
Plattegrond-nijbroek-nieuwbouw
Plattegrond eerste verdieping
Plattegrond-nijbroek-nieuwbouw
Plattegrond tweede verdieping
Plattegrond-nijbroek-nieuwbouw
Optie tot levensloopbestendig programma
Vorige
Volgende
Plattegrond-nijbroek-nieuwbouw
Plattegrond begane grond
Plattegrond-nijbroek-nieuwbouw
Plattegrond eerste verdieping
Plattegrond-nijbroek-nieuwbouw
Plattegrond tweede verdieping
Plattegrond-nijbroek-nieuwbouw
Optie tot levensloopbestendig programma
Vorige
Volgende

Downloads I De Appelhoeve

 

Contact

Heb jij vragen over woning De Appelhoeve? Het team van Van den Belt Makelaars staat klaar voor al jouw vragen. Bel of mail voor meer informatie via (0571) 27 33 77 of info@vdbeltmakelaars.nl.

Vandenbelt_verkoop_vierkant