Welkom bij het Woonbehoefte-onderzoek van project 't Hof van Dorth
Doe mee en laat ons in max. 5 minuten weten wat jouw woonwensen zijn voor jouw nieuwe woning en de leefomgeving.
Algemeen - vraag 1 van 17
Welk type woning heeft je voorkeur?
De vermelde vanaf prijzen zijn excl. keuken en badkamer
- meerdere antwoorden mogelijk -

Rijwoning vanaf € 250.000,- (ca. 65 m²)
Appartement vanaf € 380.000,- (ca. 75 m²)
Vrijstaande woning € 550.000,- (ca. 110 m², optioneel levensloopbestendig)
Geef eerst een antwoord.
Vorige
Volgende
Rijwoning - Vraag 2 van 17
Welke variant van een rijwoning heeft je voorkeur?
- één antwoord verplicht -
Tussenwoning (vanaf € 250.000,-)
Hoekwoning (circa € 300.000,-)
Geef eerst een antwoord.
Vorige
Volgende
Rijwoning - Vraag 3 van 17
Welke opties voor de rijwoning spreken jou aan?
- meerdere antwoorden mogelijk -
Verlengen woonkamer (+2 meter)
3e slaapkamer (alleen mogelijk bij een hoekwoning)
Geen van beiden
Geef eerst een antwoord.
Vorige
Volgende
Appartement - vraag 4 van 17
Welke buitenruimte wens jij bij een appartement?
- één antwoord verplicht -
Een tuin, vanaf € 400.000.- (begane grond)
Een balkon, vanaf € 380.000,- (verdieping)
Geef eerst een antwoord.
Vorige
Volgende
Appartement begane grond - vraag 5 van 17
Welke optie kies jij bij het appartement op de begane grond?
- één antwoord verplicht -
Verlengen woonkamer
Verlengen keuken
Beide verlengen
Geef eerst een antwoord.
Vorige
Volgende
Vrijstaande woning - vraag 6 van 17
Welke plattegrond heeft je voorkeur voor de begane grond van de vrijstaande woning?
- één antwoord verplicht -
Keuken achter
Keuken midden
Keuken voor
Niet levensloopbestendig
Geef eerst een antwoord.
Vorige
Volgende
Vrijstaande woning - vraag 7 van 17
Welke plattegrond heeft je voorkeur voor de eerste verdieping van de vrijstaande woning?
- één antwoord verplicht -
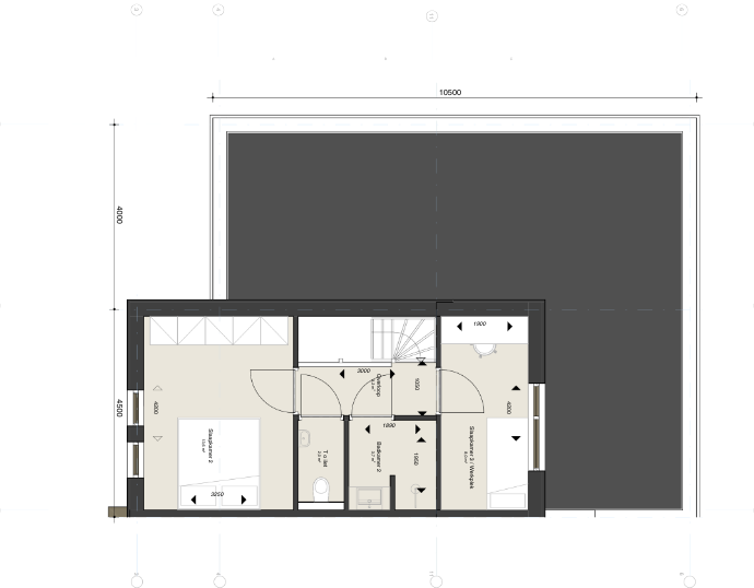
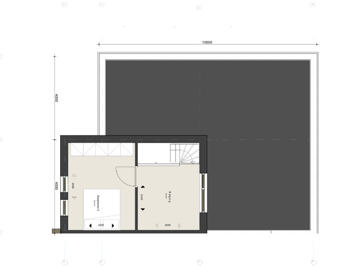
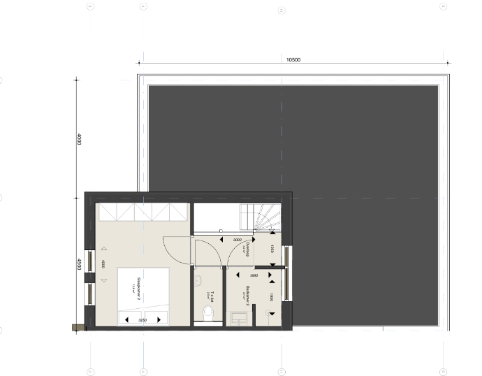
Plattegrond A
Plattegrond B
Plattegrond C
Plattegrond D
Geef eerst een antwoord.
Vorige
Volgende
Algemeen - vraag 8 van 17
Hoe groot is de kans dat je een woning wilt kopen?
- één antwoord verplicht -
Geef eerst een antwoord.
Vorige
Volgende
Algemeen - vraag 9 van 17
Welke geveluitstraling spreekt jou het meest aan?
- één antwoord verplicht -
Groen hout
Bruin hout
Vergrijsd hout
Geef eerst een antwoord.
Vorige
Volgende
Algemeen - vraag 10 van 17
Welke opties spreken jou aan?
- meerdere antwoorden mogelijk -
Border (voorzijde)
Border met erfafscheiding (voorzijde)
Pergola (voorzijde)
Veranda (achterzijde)
Geef eerst een antwoord.
Vorige
Volgende
Algemeen - vraag 11 van 17
Welke aanvullende duurzame aspecten spreken je aan?
- Selecteer maximaal 2 antwoorden -
Extra PV-panelen
Een accu voor opslag stroom
Hergebruik regenwater
Geef eerst een antwoord.
Vorige
Volgende
Algemeen - vraag 12 van 17
Waar zie jij kansen om sociale verbinding te versterken?
- Selecteer maximaal 2 antwoorden -
Natuurlijk spelen
Openbare ruimte als ontmoetingsplek
Gedeelde sportvoorziening
Een (gezamenlijke) moestuin
Geef eerst een antwoord.
Vorige
Volgende
Algemeen - vraag 13 van 17
Hoe zie jij je rol binnen het beheer van gemeenschappelijk groen- en leefruimtes?
- één antwoord verplicht -
Als actieve deelnemer, betrokken bij planning en uitvoering
Als ondersteuner, voornamelijk deelnemend aan activiteiten
Als waarnemer, betrokken maar niet actief
Geen rol, ik draag liever financieel bij
Geef eerst een antwoord.
Vorige
Volgende
Algemeen - vraag 14 van 17
Het plan is autoluw met parkeren aan de rand. Wat geldt voor jou?
- één antwoord verplicht -
Ik heb geen auto, wel bezoekers
Ik heb 1 auto
Ik heb 2 auto's
Ik heb er meer dan 2
Geef eerst een antwoord.
Vorige
Volgende
Algemeen - vraag 15 van 17
Welke voorziening(en) zie jij graag terug in het plan?
- Selecteer maximaal 2 antwoorden -
Postkast voor pakketjes
Laadpaal voor elektrische auto's
Zitbankjes
Geef eerst een antwoord.
Vorige
Volgende
Algemeen - vraag 16 van 17
Dit is nog niet aan bod gekomen, maar zie ik wel graag terug in jullie thema’s duurzaam wonen, gezonde leefomgeving en sociale verbinding:
Geef eerst een antwoord.
Vorige
Volgende
Compleet 17 van 17
Vorige